HCII Transportor de curea mică
Cat:Transportor de centură de întoarcere
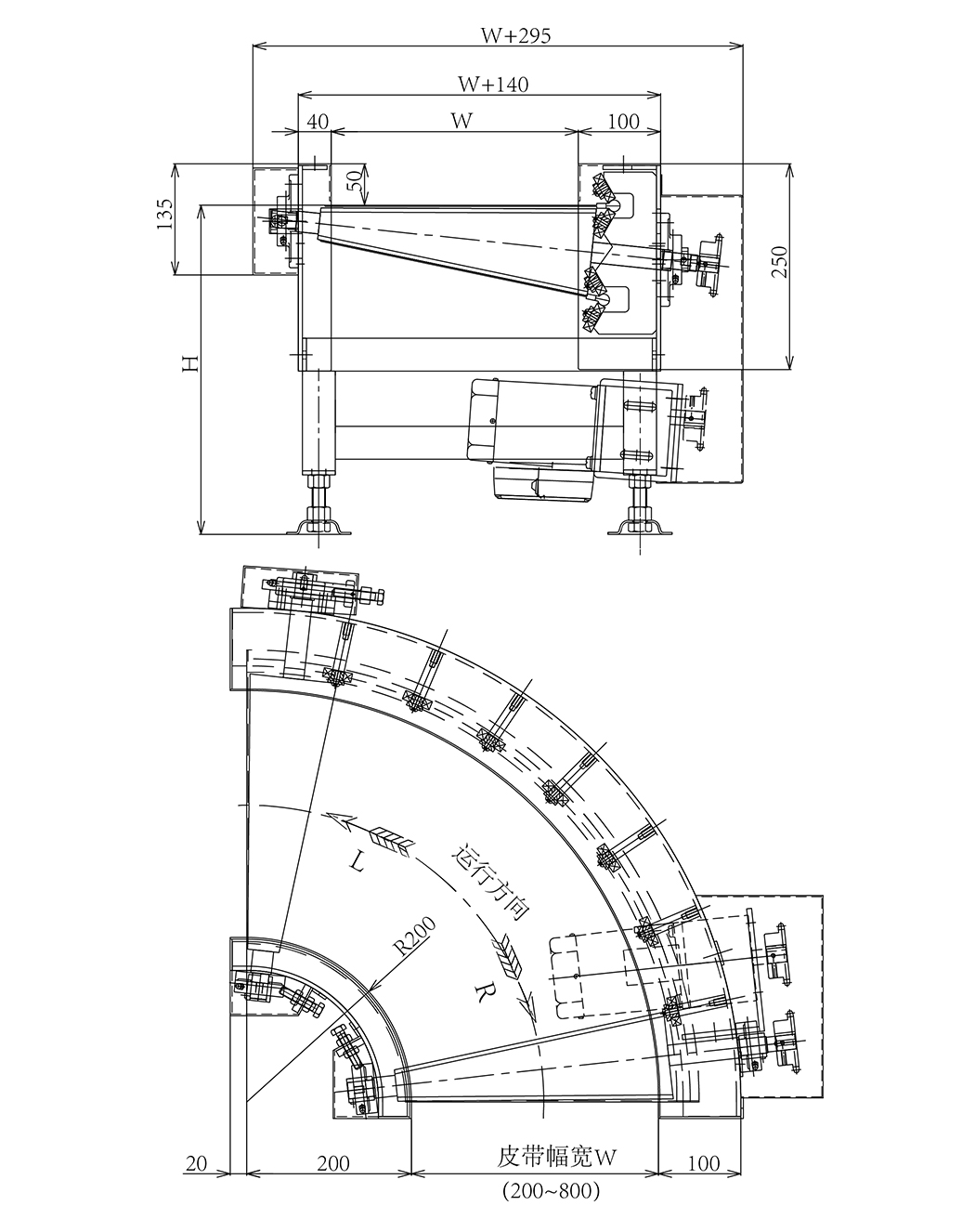
Prin cooperarea dintre roata de ghidare și șina de ghidare, centura poate fi trasă și ghidată pen...
Structura avansată, performanță de înaltă calitate, ușor de utilizat, fiabilitate ridicată și durabilitate.
Mașina de întoarcere a centurii de întoarcere este un echipament comun de transmitere, utilizat în principal pentru a transfera materiale de la o linie transportoare de centură la un alt transportor de centură de inversare de 90 de grade sau 180 de grade. Este format din componente precum curele, cadre, role de acționare, role de inversare, paleți purtători de încărcare, role de întoarcere și dispozitive de tensiune. Materialul benzii transportoare a mașinii de întoarcere a centurii include diverse materiale precum PVC, PU, PVK, etc. Pe lângă faptul că sunt utilizate pentru transmiterea materialelor obișnuite, poate satisface și transportul de materiale cu cerințe speciale, cum ar fi rezistența la ulei, acidul și rezistența la coroziune alcalină și anti-static.

Prin cooperarea dintre roata de ghidare și șina de ghidare, centura poate fi trasă și ghidată pen...
Prin cooperarea dintre roata de ghidare și șina de ghidare, centura poate fi trasă și ghidată pentru a rula.
Caracteristici: costuri reduse, sarcină ușoară și viteză mică.
Dimensiune standard
HCII-S
| Lățimea centurii | 200 | 300 | 400 | 500 |
| Lățimea transportorului | 520 | 620 | 720 | 820 |
| Unghi | 90 | Putere motorie | 90W 、 120W 、 200W |
| Înălţime | 270 până la 1100 de metri înălțime cu | Putere | AC100V (monofazat) · AC200V (monofazat) · AC200V (trifazic) |
| Viteză | Viteză fixă/variabilă | Centură | Centură de poliuretan |
| Capacitate | 10 kg/set (când încărcarea orizontală dispersată) |
Ca mutarea mărfurilor de formă a pungii, vă rugăm să retrăiți la 40% din datele privind capacitatea de mai sus.
HCII-M
| Lățimea centurii | 300 | 400 | 500 | 600 |
| Lățimea transportorului | 680 | 780 | 880 | 980 |
| Unghi | 90 | Putere motorie | 200W 、 400W |
| Înălţime | Vă rugăm să specificați, picioarele sunt opționale | Putere | AC200V (trifazic) |
| Viteză | Viteză fixă | Centură | Centură de poliuretan |
| Capacitate | 40 kg/set (când încărcarea orizontală dispersată) |
Ca mutarea mărfurilor de formă a pungii, vă rugăm să retrăiți la 40% din datele privind capacitatea de mai sus.
Viteza centurii HCII-S
| Raport | Viteza nr. | Viteză fixă 50/60 (Hz) (m/min) | Viteza nr | Viteză variabilă 50/60 (HZX (m/min) |
| 1/180 | T1 | 16./1.9 | H1 | 0,11 ~ 2,1 |
| 1/2050 | T2 | 1.8/2.2 | H2 | 0,13 ~ 2,5 |
| 1/2020 | T3 | 2.3/2.8 | H3 | 0,16 ~ 3,1 |
| 1/90 | T4 | 3.1/3.7 | H4 | 0,21-4.2 |
| 1/75 | T5 | 3.8/4.5 | H5 | 0,25 ~ 5.0 |
| 1/60 | T6 | 4.7/5.6 | H6 | 0,31 ~ 6,2 |
| 1/50 | T7 | 5.6/6.7 | H7 | 0,38 ~ 7,5 |
| 1/36 | T8 | 7.8/9.4 | H8 | 0,52-10,4 |
| 1/30 | T9 | 9.3/11.2 | H9 | 0,63 ~ 12,5 |
| 1/25 | T10 | 11.3/13.5 | H10 | 0,75 ~ 15,0 |
| 1/18 | T11 | 15.6/18.7 | H11 | 1.04 ~ 20,8 |
| 1/15 | T12 | 18.8/22.5 | H12 | 1.25 ~ 25,0 |
| 1/12.5 | T13 | 22.5/27.0 | H13 | 1,50 ~ 30,0 |
Viteza centurii HCII-M
| Raport | Viteza nr. | Viteză fixă 50/60 (Hz) (m/min) |
| 1/2020 | T1 | 15/18 |
| 1/90 | T2 | 20/24 |
Calculul vitezei vitezei fixe: rotiți viteza 1500/1800rpm (50/60Hz), role de conducere ф82.3, eficiență de conducere: 95%
Calculul vitezei vitezei variabile: rotirea vitezei 2000rpm (50; 60Hz), role de conducere ф82.3, eficiență de conducere: 95%
Desen

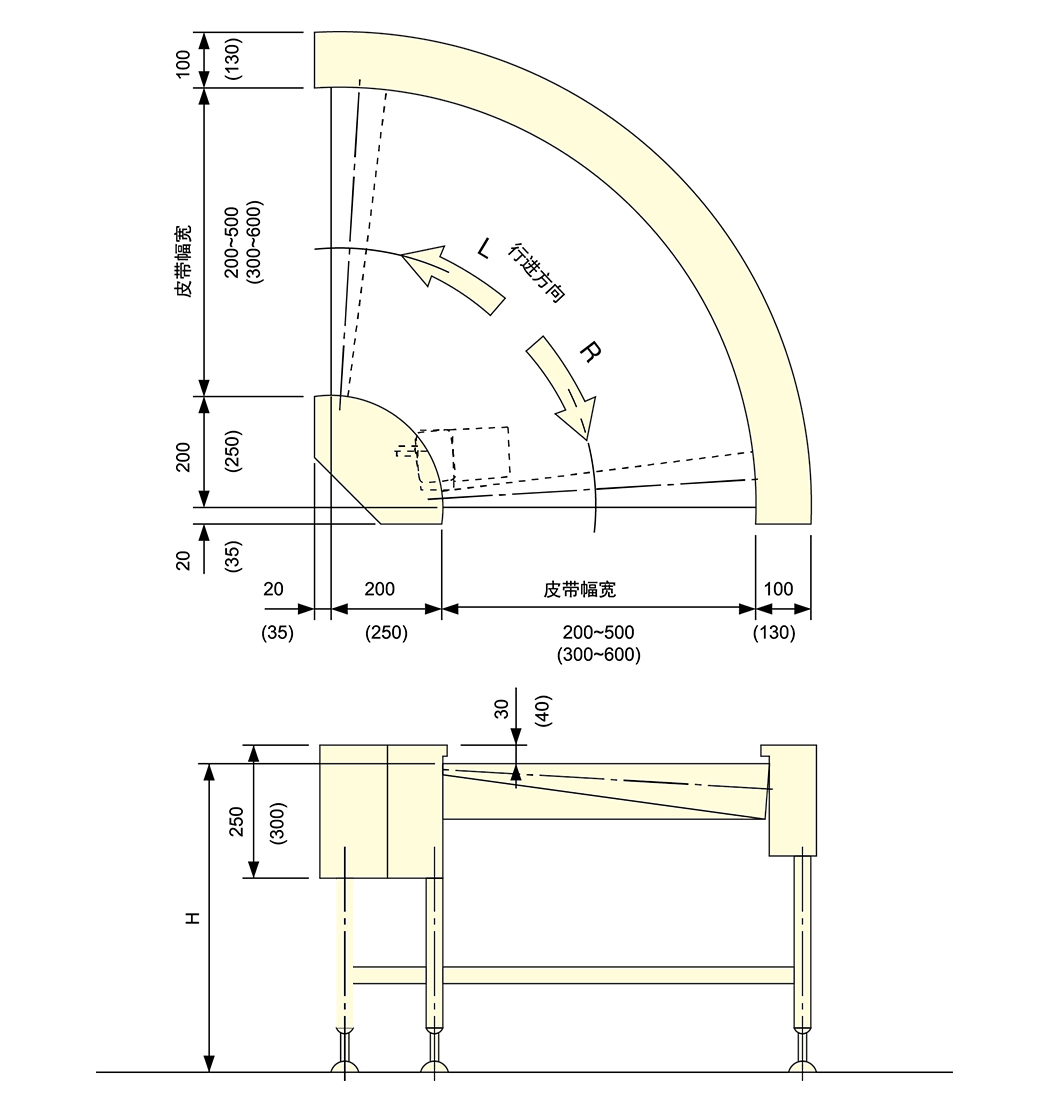
Prin cooperarea dintre roata de ghidare și bara de ghidare, centura este trasă și ghidată pentru ...
Prin cooperarea dintre roata de ghidare și bara de ghidare, centura este trasă și ghidată pentru a rula.
Caracteristici: zgomot redus, viteză mare și chiar forță de centură.
Dimensiune standard
| Lățimea centurii | 200 | 300 | 400 | 500 | 600 | 700 | 800 |
| Lățimea transportorului | 520 | 620 | 720 | 820 | 920 | 1020 | 1120 |
| Unghi | 90 | Putere motorie | 200W 、 370W 、 750W |
| Înălţime | 380 până la 1100 de metri înălțime cu | Putere | A (AC110V monofazat) B (AC200V monofazat) C (AC200V/380V trifazic) |
| Viteză | Viteză fixă | Centură | Centură de poliuretan |
| Capacitate | 100 kg/set (când încărcarea orizontală dispersată) |
Ca mutarea mărfurilor de formă a pungii, vă rugăm să retrăiți la 40% din datele privind capacitatea de mai sus.
Viteza centurii
| Raport | Viteza nr. | Viteză fixă 50/60 (Hz) (m/min) | Viteza nr. | Viteză variabilă 50Hz (m/min) |
| 1/180 | T1 | 1.6/1.9 | H1 | 0.09-1.7 |
| 1/2050 | T2 | 1,9/2.3 | H2 | 0,1-2.1 |
| 1/2020 | T3 | 2.4/2.9 | H3 | 0,13-2.6 |
| 1/90 | T4 | 3.2/3.8 | H4 | 0,17-3,5 |
| 1/75 | T5 | 3.8/4.6 | H5 | 0,2-4.2 |
| 1/60 | T6 | 4.9/5.8 | H6 | 0,25-5.1 |
| 1/50 | T7 | 5.8/6.9 | H7 | 0,3-6,2 |
| 1/36 | T8 | 8/9.5 | H8 | 0,4 ~ 8,6 |
| 1/30 | T9 | 9.5/11.5 | H9 | 0,5-10,4 |
| 1/25 | T10 | 11.5/13.7 | H10 | 0,6-12.4 |
| 1/18 | T11 | 15.9/19 | H11 | 0,9-17,3 |
| 1/15 | T12 | 19.3/22.3 | H12 | 1 ~ 20.6 |
| 1/12.5 | T13 | 23/27.4 | H13 | 1.2-24.8 |
| 1/7.5 | T14 | 38.3/45.8 | H14 | 2.1-41.4 |
| 1/5 | T15 | 57.5/68.6 | H15 | 3.1-62 |
| 1/3.6 | T16 | 79.9/95.4 | H16 | 4.3-86.1 |
| 1/3 | T17 | 95.8/114.4 | H17 | 5.2-103.4 |
Calculul vitezei vitezei fixe: rotiți viteza 1500/1800rpm (50/60Hz), role de conducere ф82.3, eficiență de conducere: 95%
Calculul vitezei vitezei variabile: rotirea vitezei 2000rpm (50; 60Hz), role de conducere ф82.3, eficiență de conducere: 95%
Desen

Prin cooperarea dintre lanț și roata de ghidare, centura poate fi trasă și ghidată. Caracteris...
Prin cooperarea dintre lanț și roata de ghidare, centura poate fi trasă și ghidată.
Caracteristici: sarcină grea și viteză rapidă.
Dimensiune standard
| Lățimea centurii | 400 | 600 | 800 | 1000 | 1200 | 1400 | 1600 | 1800 |
| Lățimea transportorului | 525 | 725 | 925 | 1125 | 1325 | 1525 | 1725 | 1925 |
| Unghi | 90 | Putere motorie | 370W 、 750W 、 1,1kW 、 1,5kW 、 2,2kW |
| Înălţime | 550 până la 2000 de metri înălțime cu | Putere | A (AC110V monofazat) B (AC200V monofazat) C (AC200V/380V trifazic) |
| Viteză | Viteză fixă | Centură | Poli (n-vinil carbazol) |
| Capacitate | 200 kg/set (când încărcarea orizontală dispersată) |
Ca mutarea mărfurilor de formă a pungii, vă rugăm să retrăiți la 40% din datele privind capacitatea de mai sus.
Viteza centurii
| Raport | Viteza nr. | Viteză fixă 50/60 (Hz) (m/min | Viteza nr. | Viteză variabilă 50Hz (m/min) |
| 1/2040 | T1 | 2.6/3.0 | H1 | 1.0-2.6 |
| 1/2020 | T2 | 2.8/3.5 | H2 | 1.1-2.8 |
| 1/2000 | T3 | 3.5/4.2 | H3 | 1,4 ~ 3,5 |
| 1/90 | T4 | 4.0/6.7 | H4 | 1,6 ~ 4.0 |
| 1/80 | T5 | 4.4/5.4 | H5 | 1.8-4.4 |
| 1/70 | T6 | 4.9/5.8 | H6 | 2.0-4.9 |
| 1/60 | T7 | 5.8/7.0 | H7 | 2.3-5.8 |
| 1/50 | T8 | 7.0/8.4 | H8 | 2,8 ~ 7.0 |
| 1/45 | T9 | 7.7/9.3 | H9 | 3.1 ~ 7.7 |
| 1/40 | T10 | 8.6/10.5 | H10 | 3.4 ~ 8.6 |
| 1/30 | T11 | 11.6/14.0 | H11 | 4.7 ~ 11.6 |
| 1/25 | T12 | 14.0/16.8 | H12 | 5.6 ~ 14.0 |
| 1/20 | T13 | 17.5/21.0 | H13 | 7.0-17.5 |
| 1/15 | T14 | 23.3/28.0 | H14 | 9.3 ~ 23.3 |
| 1/10 | T15 | 35.0/41.9 | H15 | 14.0-35.0 |
| 1/5 | T16 | 70.0/83.8 | H16 | 28.0-70.1 |
Calculul vitezei vitezei fixe: rotiți viteza 1500/1800rpm (50/60Hz), role de conducere ф82.3, eficiență de conducere: 95%
Calculul vitezei vitezei variabile: rotirea vitezei 2000rpm (50; 60Hz), role de conducere ф82.3, eficiență de conducere: 95%
Desen
De ce întreținerea transportoarelor cu role influențează direct durata de viață a sistemului Trans...
CITEŞTE MAI MULTCe face ca un transportor cu role să fie cu adevărat rezistent? Un transportor cu role grele nu este d...
CITEŞTE MAI MULTCe sunt transportoarele cu role și de ce contează tipul? Transportoare cu role sunt sisteme d...
CITEŞTE MAI MULTDe ce transportoarele cu role rămân coloana vertebrală a manipulării materialelor Transportoare cu...
CITEŞTE MAI MULTAducând meșteșugul în viitor.
Nr .60, Zhenhu North Road, Hudai Town, Districtul Binhu , Wuxi 214100, China







